дома из северного леса в москве и санкт-петербурге с 1998 г.

8 (499) 113-57-63

Дом из бруса Фахверк VZ-551  «Харош»

Дом из бруса Фахверк VZ-551 
Дом из бруса Фахверк VZ-551 
Дом из бруса Фахверк VZ-551 
Дом из бруса Фахверк VZ-551 
Дом из бруса Фахверк VZ-551 
Дом из бруса Фахверк VZ-551 
Дом из бруса Фахверк VZ-551 
Дом из бруса Фахверк VZ-551 

1 ЭТАЖ

Дом из бруса Фахверк VZ-551 

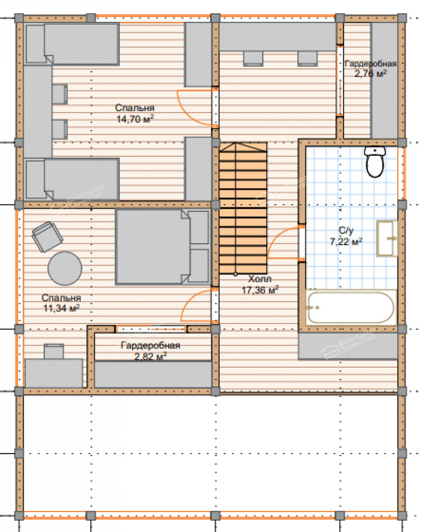
2 ЭТАЖ

Дом из бруса Фахверк VZ-551 
Площадь по осям

Площадь по ПРОЕКТНЫМ ОСЯМ. Фактическая площадь будет зависеть от толщины стен, внутренней планировки и отделки.

180 м²
Материал стен
Фахверк
7 icon
Комнат
2 icon
Санузла
4 icon
Спальни
1 icon
Терраса
3 icon
Гардеробных
Стоимость дома
По запросу
Площадь по осям
180 м²
Стоимость дома
По запросу

Что входит в стоимость

icon Проектирование icon Замеры участка icon Фундамент icon Стеновой комплект icon Кровля icon Доставка
Проектирование

При строительстве дома проектирование бесплатно!

Индивидуальное проектирование дома с архитектором:

АР (архитектурный раздел) — поэтажные планировки дома; детализированные фасады здания; схема установки окон, план стропильной системы; схема монтажа кровли и т.д.

КД (конструкции деревянные) — высотные отметки проемов, разрезы, развертки стен, межэтажные балки, типовые узлы и т.д.

Схема фундамента — план монтажа монолитной ж/б плиты или свайного поля, план размещения закладных коммуникаций

3D-модель дома — аксонометрические проекции конструктива будущего дома, визуализация экстерьера здания

СПОЗУ — схема планировочной организации земельного участка (схема размещения дома на участке для будущей регистрации)

Смета — детальный расчёт стоимости материалов, отделочных и инженерных работ, доставки и организации стройплощадки

И еще 3 раздела...

Замеры участка

Поможем правильно расположить дом с учетом особенностей участка

Осмотр участка с опытным прорабом:

Проведение анализа грунта: пробное бурение, изучение состава почвы, толщины плодородного слоя и уровня грунтовых вод на пятне застройки
для правильного выбора типа фундамента

Обследование рельефа участка, перепадов на будущем пятне застройки, разметка поворотных точек СПОЗУ, зарисовка схемы расположения дома

Обсуждение с заказчиком зон для сохранения зелёных насаждений

Проверка доступа к воде, электричеству, канализации и другим инженерным системам, влияющим на строительство и смету

Проверка подъездных путей - оценка возможности проезда строительной техники и доставки материалов без повреждения ландшафта и препятствий

Согласование зон хранения стройматериалов, установки бытовок и временных сооружений

Рекомендации по размещению дома на участке на основании анализа местности: особенностей ландшафта, розы ветров

И еще 6 важных пунктов...

Фундамент

Гарантия на фундаменты от 25 лет по договору!

Надёжный фундамент:

Монолитная железобетонная плита 250 мм с ростверком 200 мм вниз армируется для равномерного распределения нагрузок и предотвращения усадочных трещин

Вертикальная планировка участка выполняются с учётом уклонов и рельефа, чтобы обеспечить стабильное основание для фундамента

Разметка осей и привязка координат что гарантирует правильное расположение стен и перекрытий без смещений, позволяя соблюсти все строительные нормы и обеспечивая идеальную геометрию дома

Подготовка основания и ввод необходимых коммуникаций, при этом заранее устанавливаются закладные элементы для будущих коммуникаций — воды, канализации и электричества, что упрощает последующие монтажные работы и экономит время.

Армирование каркаса, чтобы повысить прочность и устойчивость к нагрузкам

Заливка бетоном и приёмка инженером технического надзора

И ещё 3 пункта…

Стеновой комплект

Собственное сырьё – гарантия фиксированной стоимости

Фахверковый домокомплект:

Первосортный северный лес с собственных делянок (Вологодская и Архангельская обл.)

Балки фахверка с нарезкой чаш на станке Hundegger K3

Энергоэффективное утепление стен и кровли PIR (класс А++)

Пропитка торцевым составом Teknos JRM для долговечности

Профессиональная сборка и монтаж фахверка под контролем опытного прораба

Панорамное остекление:

Безрамное остекление толщиной ≥50 мм, двухкамерные закаленные стеклопакеты с аргоном

Профили и блоки REHAU (Германия), энергосберегающий 2-х камерный стеклопакет

И еще 13 позиций...

Кровля

Бригады с опытом от 15 лет

Кровля с финишным покрытием:

Металлочерепица «GrandLine» (толщина 0,5 мм) с полным комплектом всех доборных элементов — дом защищён от дождя, снега и ветра

Монтаж обрешетки и кровельного покрытия с соблюдением технологических зазоров опытной бригадой компании

Конструкционная стропильная система из клееного бруса 100×200 мм, обработанного огнебиозащитным составом

Контр-рейка из бруска 40×40 мм, для надёжной фиксации и вентиляции, также обработанная защитным составом

Гидро-ветро-влагозащитная мембрана «Изоспан AQ» с профессиональной проклейкой двухсторонним скотчем

Снегозадержатели и монтаж вентвыходов устанавливаются для безопасного схода снега и нормальной вентиляции, предотвращая образование наледи и обеспечивая правильный воздухообмен

И ещё 7 позиций…

Доставка

Гарантия скорости поставки

Доставка материалов на участок фирменным транспортом «Вологодское зодчество»

Все материалы всегда вовремя! Мы настроили регулярное сообщение между Москвой, Петербургом и нашим производством в городе Вологда.

Мы выполняем более 18 рейсов в неделю. Это позволяет не зависеть от сторонних логистических компаний и соблюдать строительный график производства работ на объектах компании.

Все материалы надёжно упакованы в специализированные транспортные паллеты – это гарантия защиты от механических повреждений, влаги и других внешних воздействий на протяжении всего строительства.

Оформление товарно-транспортных накладных, счетов-фактуры, пропусков и иных транспортных документов производится сотрудниками компании. Наши застройщики не тратят личное время благодаря сервису компании.

Приёмка и разгрузка материалов производится прорабами компании, при участии квалифицированной бригады, что ускоряет начало строительства.

И еще 5 важных фактов...

Что входит в стоимость

icon

Проектирование

Проектирование

При строительстве дома проектирование бесплатно!

Индивидуальное проектирование дома с архитектором:

АР (архитектурный раздел) — поэтажные планировки дома; детализированные фасады здания; схема установки окон, план стропильной системы; схема монтажа кровли и т.д.

КД (конструкции деревянные) — высотные отметки проемов, разрезы, развертки стен, межэтажные балки, типовые узлы и т.д.

Схема фундамента — план монтажа монолитной ж/б плиты или свайного поля, план размещения закладных коммуникаций

3D-модель дома — аксонометрические проекции конструктива будущего дома, визуализация экстерьера здания

СПОЗУ — схема планировочной организации земельного участка (схема размещения дома на участке для будущей регистрации)

Смета — детальный расчёт стоимости материалов, отделочных и инженерных работ, доставки и организации стройплощадки

icon

Замеры участка

Замеры участка

Поможем правильно расположить дом с учетом особенностей участка

Осмотр участка с опытным прорабом:

Проведение анализа грунта: пробное бурение, изучение состава почвы, толщины плодородного слоя и уровня грунтовых вод на пятне застройки
для правильного выбора типа фундамента

Обследование рельефа участка, перепадов на будущем пятне застройки, разметка поворотных точек СПОЗУ, зарисовка схемы расположения дома

Обсуждение с заказчиком зон для сохранения зелёных насаждений

Проверка доступа к воде, электричеству, канализации и другим инженерным системам, влияющим на строительство и смету

Проверка подъездных путей - оценка возможности проезда строительной техники и доставки материалов без повреждения ландшафта и препятствий

Согласование зон хранения стройматериалов, установки бытовок и временных сооружений

Рекомендации по размещению дома на участке на основании анализа местности: особенностей ландшафта, розы ветров

icon

Фундамент

Фундамент

Гарантия на фундаменты от 25 лет по договору!

Надёжный фундамент:

Монолитная железобетонная плита 250 мм с ростверком 200 мм вниз армируется для равномерного распределения нагрузок и предотвращения усадочных трещин

Вертикальная планировка участка выполняются с учётом уклонов и рельефа, чтобы обеспечить стабильное основание для фундамента

Разметка осей и привязка координат что гарантирует правильное расположение стен и перекрытий без смещений, позволяя соблюсти все строительные нормы и обеспечивая идеальную геометрию дома

Подготовка основания и ввод необходимых коммуникаций, при этом заранее устанавливаются закладные элементы для будущих коммуникаций — воды, канализации и электричества, что упрощает последующие монтажные работы и экономит время.

Армирование каркаса, чтобы повысить прочность и устойчивость к нагрузкам

Заливка бетоном и приёмка инженером технического надзора

icon

Стеновой комплект

Стеновой комплект

Собственное сырьё – гарантия фиксированной стоимости

Фахверковый домокомплект:

Первосортный северный лес с собственных делянок (Вологодская и Архангельская обл.)

Балки фахверка с нарезкой чаш на станке Hundegger K3

Энергоэффективное утепление стен и кровли PIR (класс А++)

Пропитка торцевым составом Teknos JRM для долговечности

Профессиональная сборка и монтаж фахверка под контролем опытного прораба

Панорамное остекление:

Безрамное остекление толщиной ≥50 мм, двухкамерные закаленные стеклопакеты с аргоном

Профили и блоки REHAU (Германия), энергосберегающий 2-х камерный стеклопакет

icon

Кровля

Кровля

Бригады с опытом от 15 лет

Кровля с финишным покрытием:

Металлочерепица «GrandLine» (толщина 0,5 мм) с полным комплектом всех доборных элементов — дом защищён от дождя, снега и ветра

Монтаж обрешетки и кровельного покрытия с соблюдением технологических зазоров опытной бригадой компании

Конструкционная стропильная система из клееного бруса 100×200 мм, обработанного огнебиозащитным составом

Контр-рейка из бруска 40×40 мм, для надёжной фиксации и вентиляции, также обработанная защитным составом

Гидро-ветро-влагозащитная мембрана «Изоспан AQ» с профессиональной проклейкой двухсторонним скотчем

Снегозадержатели и монтаж вентвыходов устанавливаются для безопасного схода снега и нормальной вентиляции, предотвращая образование наледи и обеспечивая правильный воздухообмен

icon

Доставка

Доставка

Гарантия скорости поставки

Доставка материалов на участок фирменным транспортом «Вологодское зодчество»

Все материалы всегда вовремя! Мы настроили регулярное сообщение между Москвой, Петербургом и нашим производством в городе Вологда.

Мы выполняем более 18 рейсов в неделю. Это позволяет не зависеть от сторонних логистических компаний и соблюдать строительный график производства работ на объектах компании.

Все материалы надёжно упакованы в специализированные транспортные паллеты – это гарантия защиты от механических повреждений, влаги и других внешних воздействий на протяжении всего строительства.

Оформление товарно-транспортных накладных, счетов-фактуры, пропусков и иных транспортных документов производится сотрудниками компании. Наши застройщики не тратят личное время благодаря сервису компании.

Приёмка и разгрузка материалов производится прорабами компании, при участии квалифицированной бригады, что ускоряет начало строительства.

icon

30 лет
гарантии

icon

Офис
в г. Санкт-Петербург

icon

Офис
в г. Москва

icon

Индивидуальное
проектирование

А вот и построенные дома:

Лучший одноэтажный дом

Экскурсия по дому «Миллер»: продуманная планировка, уютная атмосфера и комфорт, который ощущается с первых минут.

Двухэтажный дом мечты

Обзор проекта «Флагман» — 170 м² из клееного бруса на монолитной железобетонной плите. Простор, стиль и надёжность в каждом элементе.

В гости к хозяевам «Энея»

Руководитель компании приезжает в готовый дом по проекту ВЗ-329 — компактный и уютный одноэтажный вариант для комфортной загородной жизни.

Больше построенных домов и видео тут

ПОСЕТИТЬ ОБЪЕКТЫ С ПРОРАБОМ

Проверить качество строительства

Выбрать материал для своего дома

Убедиться в квалификации сотрудников

*в Москве и С‑Петербурге

Экскурсия на стройку

Работа компании в режиме онлайн

Все камеры
Строительство бани в к. п. Гридюкино 48 м2 (клееный брус) МСК
Строительство дома в к. п. Ели Estate 175 м2 (клееный брус) МСК
Строительство дома в д. Некрасино 125 м2 (клееный брус) МСК
Строительство дома в г. Мытищи 80 м2 (клееный брус) МСК
Строительство дома в с. Семёновское 74 м2 (клееный брус) МСК
Строительство дома в к. п. Финский бриз 288 м2 (клееный брус) СПБ
Вид из офиса
Строительство дома в д. Слобода 385 м2 (клееный брус) Тверская область
Строительство дома в к. п. Петергофские дачи 283 м2 (фахверк) СПБ
Строительство дома д. Лупполово 124,89 м2 (газобетон) СПБ

>25 лет

“Вологодское зодчество” строит дома из собственного леса

В Вологодской области — делянки, производство материалов и домокомплектов.

А строим в Московской, Ленинградской
и близлежащих областях.

Для этого в Москве и Петербурге
открыли офисы.

img map img

Ленинградская
область

Вологодская
область

Московская
область

С нами вы гораздо ближе к своему дому — и без “сюрпризов”

Смета окончательная

после подписания договора

Она не меняется ни на рубль, даже если сезонные цены и цены на материалы вырастут

Оплата по графику

с приемкой каждого этапа

Вы знаете, когда и сколько именно денег вам понадобится, поэтому можете планировать нагрузку

Ипотека от 6%

благодаря партнерству с РСХБ

Мы аккредитованы в ведущих банках,
наши проекты одобряют +
мы помогаем подобрать подходящий проект

Подробнее об условиях

Мы строим с 1998 года и точно знаем: одинаковых домов не бывает

Даже если мы построим два одинаковых дома «как на картинке», все равно остается разная почва (и фундамент), сезон и срок. Все это влияет на смету.

Но мы можем:
Рассчитать цену
дома

прямо по телефону

Несколько уточняющих вопросов и вы получите реальную цену под ваши параметры.

Посчитать дом
как на картинке

с разбросом 1-2%

Это вариант подойдет, если вы хотите дом точь-в-точь, как на фотографиях проекта.

Оптимизировать дом
под ваш бюджет

без потери качества

В любой понравившийся проект можно внести изменения.

1998

team
Связаться с нами

Буквально за 5 минут разговора вы станете ближе к своему дому.

team
Я согласен на обработку персональных данных

Мы вам позвоним
в течение 10 минут в рабочее время
и душевно пообщаемся.

Ответьте для этого всего на

Всего 5 простых вопросов позволят вам узнать корректную цену на этот проект

Какой у вас участок?

Фундамент может составлять до 10% от стоимости строительства. Чтобы верно рассчитать стоимость, важно понимать какой тип фундамента подходит для вашего участка.

Ровный

С перепадами

Еще подбираю участок

Тип финансирования

Ипотека

Безнал

Наличные

Не определился

Когда вы планируете начать строительство?

Стоимость на материалы постоянно меняется. Благодаря этой информации мы можем зафиксировать за вами текущие цены или рассчитать с поправкой на изменение цен, чтобы вы могли ориентироваться на реальную стоимость.

Как можно скорее

В ближайшие 3-6 месяцев

Через пол года и более

Пока не определился

Как удобно получить итоговый файл?

Telegram
(автоматический до 15 минут)

MAX
(автоматический до 15 минут)

По телефону
(доработает сметчик, перезвоним через 2 часа)

В офисе
(личная встреча в офисе
со специалистом по стройке)

Сезонность проживания

Летнее

Круглогодичное

Регион строительства

Московская область

Ленинградская область

Вологодская область

Другой регион России

В какой комплектации хотите получить дом?

Теплый контур
(коробка под отделку)

С предчистовой отделкой (White Box)

С полной отделкой и инженеркой

Не знаю / нужна консультация

Сколько спален нужно, чтобы у каждого было личное пространство?

2 спальни
(нам и ребенку/гостям)

3 спальни
(стандарт для семьи)

4 и более
(для большой семьи)

Не знаю / нужна консультация

Удаленность участка?

Москва

до 100 км от МКАД

100+ км от МКАД

Пока нет участка

Нажимая кнопку «Подтвердить и получить», вы даете согласие на обработку ваших персональных данных в соответствии с политикой конфиденциальности

Свяжитесь с нами в мессенджере — обсудим ваш проект!

Написать в Telegram icon Написать в MAX icon