дома из северного леса в москве и санкт-петербурге с 1998 г.

8 (499) 113-57-63

Дом из бревна VZ-235 «Наполеон»

Дом из бревна VZ-235
Дом из бревна VZ-235
Дом из бревна VZ-235
Дом из бревна VZ-235
Дом из бревна VZ-235
Дом из бревна VZ-235
Дом из бревна VZ-235

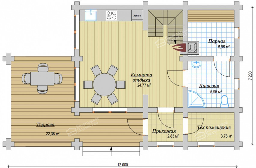
1 ЭТАЖ

Дом из бревна VZ-235

2 ЭТАЖ

Площадь по осям

Площадь по ПРОЕКТНЫМ ОСЯМ. Фактическая площадь будет зависеть от толщины стен, внутренней планировки и отделки.

102 м²
Материал стен
оцилиндрованное бревно
ручная рубка
3 icon
Комнаты
2 icon
Санузла
2 icon
Спальни
1 icon
Терраса
1 icon
Гостиная
Стоимость дома
5,5 млн.
Площадь по осям
102 м²
Стоимость дома
5,5 млн.

Что входит в стоимость

icon Проектирование icon Замеры участка icon Фундамент icon Стеновой комплект icon Кровля icon Доставка
Проектирование

При строительстве дома проектирование бесплатно!

Индивидуальное проектирование дома с архитектором:

АР (архитектурный раздел) — поэтажные планировки дома; детализированные фасады здания; схема установки окон, план стропильной системы; схема монтажа кровли и т.д.

КД (конструкции деревянные) — высотные отметки проемов, разрезы, развертки стен, межэтажные балки, типовые узлы и т.д.

Схема фундамента — план монтажа монолитной ж/б плиты или свайного поля, план размещения закладных коммуникаций

3D-модель дома — аксонометрические проекции конструктива будущего дома, визуализация экстерьера здания

СПОЗУ — схема планировочной организации земельного участка (схема размещения дома на участке для будущей регистрации)

Смета — детальный расчёт стоимости материалов, отделочных и инженерных работ, доставки и организации стройплощадки

И еще 3 раздела...

Замеры участка

Поможем правильно расположить дом с учетом особенностей участка

Осмотр участка с опытным прорабом:

Проведение анализа грунта: пробное бурение, изучение состава почвы, толщины плодородного слоя и уровня грунтовых вод на пятне застройки
для правильного выбора типа фундамента

Обследование рельефа участка, перепадов на будущем пятне застройки, разметка поворотных точек СПОЗУ, зарисовка схемы расположения дома

Обсуждение с заказчиком зон для сохранения зелёных насаждений

Проверка доступа к воде, электричеству, канализации и другим инженерным системам, влияющим на строительство и смету

Проверка подъездных путей - оценка возможности проезда строительной техники и доставки материалов без повреждения ландшафта и препятствий

Согласование зон хранения стройматериалов, установки бытовок и временных сооружений

Рекомендации по размещению дома на участке на основании анализа местности: особенностей ландшафта, розы ветров

И еще 6 важных пунктов...

Фундамент

Гарантия на фундаменты от 30 лет по договору!

Надёжный фундамент:

Монолитные забивные ЖБ сваи, ГОСТ (150х150 мм / L - 3000 мм)

Другие доступные варианты фундаментов:

Монолитный железобетонный ленточный фундамент 400х600 мм

Монолитная железобетонная плита 250 мм с верхним обвязочным ростверком 200 мм (*для участков с перепадом высот)

Комбинированный фундамент: монолитная плита 250 мм, залитая поверх забивных ЖБ свай (*для участков с торфяными грунтами)

Винтовые сваи 108 мм и 133 мм с последующим диагональным укреплением проф.трубой и швеллером (*для сложных грунтов)

Монолитная балка 300х400 мм по забивным железобетонным сваям

Комбинированный фундамент: монолитная лента 300х400 мм с обратной засыпкой и заливкой монолитной плиты 200 мм

И ещё 3 доступных варианта…

Стеновой комплект

Собственное сырьё – гарантия фиксированной стоимости

Комплект деталей дома из бревна (толщина от 240 мм):

Бревно I сорта, отобранное на собственных делянках компании специально для изготовления домокомплектов из оцилиндрованного бревна и срубов ручной работы (ручная рубка)

Изготовление заготовок бревна на современных станках проходного типа
или обработка брёвен «под рубанок» (для срубов ручной работы)

Комплектация, маркировка и пакетирование деталей сруба, стяжка пенопропиленовой лентой, формирование пакетных ведомостей

Сборка домокомплекта:

Профессиональная сборка дома бригадой «Вологодское зодчество»

Специализированный крепёж «Болт-Сила» обеспечивает плотное соединение венцов и исключает их продувание зимой

Техника для сборки домокомплекта (кран, подъёмные механизмы)

И еще 13 позиций...

Кровля

Бригады с опытом от 15 лет

Кровля с гарантией от протекания:

Металлочерепица «GrandLine» с полимерным покрытием (толщина покрытия — 25 мкм, толщина металла — 0,5 мм, защитный слой Zn 140 г/кв.м.)

Монтаж кровли опытной бригадой компании

Трехслойная гидро-ветро-влагозащитная мембрана с защитными слоями из первичного нетканого полипропилена и функционального слоя термопластичного полиуретана с высокой степенью упругости

Усиленная стропильная система из бруса камерной сушки дискового напила с улучшенной геометрией по технологии «на скользящие опоры», гарантирующую правильную усадку кровли

Обработка всех пиломатериалов огне-био-защитными составами
I категории

Усиленные скользящие опоры, оцинкованные крепёжные уголки, метизы и иные расходные материалы для сборки кровли

Пенополиуретановая шумоизоляционная лента под контр-обрешётку

И ещё 7 позиций…

Доставка

Гарантия скорости поставки

Доставка материалов на участок фирменным транспортом «Вологодское зодчество»

Все материалы всегда вовремя! Мы настроили регулярное сообщение между Москвой, Петербургом и нашим производством в городе Вологда.

Мы выполняем более 18 рейсов в неделю. Это позволяет не зависеть от сторонних логистических компаний и соблюдать строительный график производства работ на объектах компании.

Все материалы надёжно упакованы в специализированные транспортные паллеты – это гарантия защиты от механических повреждений, влаги и других внешних воздействий на протяжении всего строительства.

Оформление товарно-транспортных накладных, счетов-фактуры, пропусков и иных транспортных документов производится сотрудниками компании. Наши застройщики не тратят личное время благодаря сервису компании.

Приёмка и разгрузка материалов производится прорабами компании, при участии квалифицированной бригады, что ускоряет начало строительства.

И еще 5 важных фактов...

Что входит в стоимость

icon

Проектирование

Проектирование

При строительстве дома проектирование бесплатно!

Индивидуальное проектирование дома с архитектором:

АР (архитектурный раздел) — поэтажные планировки дома; детализированные фасады здания; схема установки окон, план стропильной системы; схема монтажа кровли и т.д.

КД (конструкции деревянные) — высотные отметки проемов, разрезы, развертки стен, межэтажные балки, типовые узлы и т.д.

Схема фундамента — план монтажа монолитной ж/б плиты или свайного поля, план размещения закладных коммуникаций

3D-модель дома — аксонометрические проекции конструктива будущего дома, визуализация экстерьера здания

СПОЗУ — схема планировочной организации земельного участка (схема размещения дома на участке для будущей регистрации)

Смета — детальный расчёт стоимости материалов, отделочных и инженерных работ, доставки и организации стройплощадки

icon

Замеры участка

Замеры участка

Поможем правильно расположить дом с учетом особенностей участка

Осмотр участка с опытным прорабом:

Проведение анализа грунта: пробное бурение, изучение состава почвы, толщины плодородного слоя и уровня грунтовых вод на пятне застройки
для правильного выбора типа фундамента

Обследование рельефа участка, перепадов на будущем пятне застройки, разметка поворотных точек СПОЗУ, зарисовка схемы расположения дома

Обсуждение с заказчиком зон для сохранения зелёных насаждений

Проверка доступа к воде, электричеству, канализации и другим инженерным системам, влияющим на строительство и смету

Проверка подъездных путей - оценка возможности проезда строительной техники и доставки материалов без повреждения ландшафта и препятствий

Согласование зон хранения стройматериалов, установки бытовок и временных сооружений

Рекомендации по размещению дома на участке на основании анализа местности: особенностей ландшафта, розы ветров

icon

Фундамент

Фундамент

Гарантия на фундаменты от 30 лет по договору!

Надёжный фундамент:

Монолитные забивные ЖБ сваи, ГОСТ (150х150 мм / L - 3000 мм)

Другие доступные варианты фундаментов:

Монолитный железобетонный ленточный фундамент 400х600 мм

Монолитная железобетонная плита 250 мм с верхним обвязочным ростверком 200 мм (*для участков с перепадом высот)

Комбинированный фундамент: монолитная плита 250 мм, залитая поверх забивных ЖБ свай (*для участков с торфяными грунтами)

Винтовые сваи 108 мм и 133 мм с последующим диагональным укреплением проф.трубой и швеллером (*для сложных грунтов)

Монолитная балка 300х400 мм по забивным железобетонным сваям

Комбинированный фундамент: монолитная лента 300х400 мм с обратной засыпкой и заливкой монолитной плиты 200 мм

icon

Стеновой комплект

Стеновой комплект

Собственное сырьё – гарантия фиксированной стоимости

Комплект деталей дома из бревна (толщина от 240 мм):

Бревно I сорта, отобранное на собственных делянках компании специально для изготовления домокомплектов из оцилиндрованного бревна и срубов ручной работы (ручная рубка)

Изготовление заготовок бревна на современных станках проходного типа
или обработка брёвен «под рубанок» (для срубов ручной работы)

Комплектация, маркировка и пакетирование деталей сруба, стяжка пенопропиленовой лентой, формирование пакетных ведомостей

Сборка домокомплекта:

Профессиональная сборка дома бригадой «Вологодское зодчество»

Специализированный крепёж «Болт-Сила» обеспечивает плотное соединение венцов и исключает их продувание зимой

Техника для сборки домокомплекта (кран, подъёмные механизмы)

icon

Кровля

Кровля

Бригады с опытом от 15 лет

Кровля с гарантией от протекания:

Металлочерепица «GrandLine» с полимерным покрытием (толщина покрытия — 25 мкм, толщина металла — 0,5 мм, защитный слой Zn 140 г/кв.м.)

Монтаж кровли опытной бригадой компании

Трехслойная гидро-ветро-влагозащитная мембрана с защитными слоями из первичного нетканого полипропилена и функционального слоя термопластичного полиуретана с высокой степенью упругости

Усиленная стропильная система из бруса камерной сушки дискового напила с улучшенной геометрией по технологии «на скользящие опоры», гарантирующую правильную усадку кровли

Обработка всех пиломатериалов огне-био-защитными составами
I категории

Усиленные скользящие опоры, оцинкованные крепёжные уголки, метизы и иные расходные материалы для сборки кровли

Пенополиуретановая шумоизоляционная лента под контр-обрешётку

icon

Доставка

Доставка

Гарантия скорости поставки

Доставка материалов на участок фирменным транспортом «Вологодское зодчество»

Все материалы всегда вовремя! Мы настроили регулярное сообщение между Москвой, Петербургом и нашим производством в городе Вологда.

Мы выполняем более 18 рейсов в неделю. Это позволяет не зависеть от сторонних логистических компаний и соблюдать строительный график производства работ на объектах компании.

Все материалы надёжно упакованы в специализированные транспортные паллеты – это гарантия защиты от механических повреждений, влаги и других внешних воздействий на протяжении всего строительства.

Оформление товарно-транспортных накладных, счетов-фактуры, пропусков и иных транспортных документов производится сотрудниками компании. Наши застройщики не тратят личное время благодаря сервису компании.

Приёмка и разгрузка материалов производится прорабами компании, при участии квалифицированной бригады, что ускоряет начало строительства.

icon

30 лет
гарантии

icon

Офис
в г. Санкт-Петербург

icon

Офис
в г. Москва

icon

Индивидуальное
проектирование

О проекте

Среди живописных лесов, где свежий воздух насыщен ароматами хвои, раскинулся двухэтажный дом из оцилиндрованного бревна, воплощение уюта и природной гармонии. Его общая площадь составляет 103 квадратных метра, что позволяет комфортно разместить все необходимые зоны для жизни и отдыха. Внешний вид дома привлекает внимание своей природной текстурой дерева, словно сливающегося с окружающей средой, создавая впечатление, что он вырос здесь вместе с лесом. На первом этаже находится просторная терраса, которая служит идеальным местом для утреннего кофе или вечернего чаепития, окруженного зеленью и пением птиц. Заходя внутрь, вы оказываетесь в уютной комнате отдыха, где можно отдохнуть после долгого дня, наслаждаясь теплом и треском камина.

На втором этаже расположены две спальни, каждая из которых обладает своей индивидуальностью и неповторимой атмосферой. В одной из них, главной спальне, большие окна открывают вид на лес, позволяя свету проникать внутрь, создавая непередаваемое ощущение простора и свободы. Вторая спальня предназначена для гостей или детей, её дизайн продуман до мелочей, чтобы обеспечить максимальный комфорт. 

Важным элементом дома является парная/сауна, расположенная на первом этаже.Это место, где можно не только согреться зимой, но и получить истинное удовольствие от релаксации, окружённое запахами натурального дерева и целебным паром. Сауна оборудована всем необходимым для полноценного отдыха: удобные полки, качественная печь.

Дом из оцилиндрованного бревна площадью 103 квадратных метра – это не просто жильё, а настоящее место силы и уединения, где каждый уголок пропитан теплом и уютом. Его конструкция обеспечивает отличную теплоизоляцию, что делает его идеальным для круглогодичного проживания. Архитектурное решение и использование натуральных материалов создают уникальную атмосферу, где современный комфорт гармонично сочетается с природной красотой. Проживание в таком доме позволяет сбежать от городской суеты и погрузиться в мир спокойствия и гармонии, наслаждаясь каждым мгновением, проведённым здесь. Терраса и сауна добавляют особый шарм, превращая этот дом в идеальное место для отдыха и восстановления сил.

А вот и построенные дома:

Лучший одноэтажный дом

Экскурсия по дому «Миллер»: продуманная планировка, уютная атмосфера и комфорт, который ощущается с первых минут.

Двухэтажный дом мечты

Обзор проекта «Флагман» — 170 м² из клееного бруса на монолитной железобетонной плите. Простор, стиль и надёжность в каждом элементе.

В гости к хозяевам «Энея»

Руководитель компании приезжает в готовый дом по проекту ВЗ-329 — компактный и уютный одноэтажный вариант для комфортной загородной жизни.

Больше построенных домов и видео тут

ПОСЕТИТЬ ОБЪЕКТЫ С ПРОРАБОМ

Проверить качество строительства

Выбрать материал для своего дома

Убедиться в квалификации сотрудников

*в Москве и С‑Петербурге

Экскурсия на стройку

Работа компании в режиме онлайн

Все камеры
Строительство дома в с. Семёновское 74 м2 (клееный брус) МСК
Строительство дома в г. Мытищи 80 м2 (клееный брус) МСК
Строительство бани в к. п. Гридюкино 48 м2 (клееный брус) МСК
Строительство дома в к. п. Ели Estate 175 м2 (клееный брус) МСК
Вид из офиса
Строительство дома в д. Слобода 385 м2 (клееный брус) Тверская область
Строительство дома в п. Майнила 205 м2 (клееный брус) СПБ
Строительство дома д. Лупполово 124,89 м2 (газобетон) СПБ
Строительство дома в к. п. Петергофские дачи 283 м2 (фахверк) СПБ
Строительство дома д.Хязельки 106,55 м2 (газобетон) СПб

>25 лет

“Вологодское зодчество” строит дома из собственного леса

В Вологодской области — делянки, производство материалов и домокомплектов.

А строим в Московской, Ленинградской
и близлежащих областях.

Для этого в Москве и Петербурге
открыли офисы.

img map img

Ленинградская
область

Вологодская
область

Московская
область

С нами вы гораздо ближе к своему дому — и без “сюрпризов”

Смета окончательная

после подписания договора

Она не меняется ни на рубль, даже если сезонные цены и цены на материалы вырастут

Оплата по графику

с приемкой каждого этапа

Вы знаете, когда и сколько именно денег вам понадобится, поэтому можете планировать нагрузку

Ипотека от 6%

благодаря партнерству с РСХБ

Мы аккредитованы в ведущих банках,
наши проекты одобряют +
мы помогаем подобрать подходящий проект

Подробнее об условиях

Мы строим с 1998 года и точно знаем: одинаковых домов не бывает

Даже если мы построим два одинаковых дома «как на картинке», все равно остается разная почва (и фундамент), сезон и срок. Все это влияет на смету.

Но мы можем:
Рассчитать цену
дома

прямо по телефону

Несколько уточняющих вопросов и вы получите реальную цену под ваши параметры.

Посчитать дом
как на картинке

с разбросом 1-2%

Это вариант подойдет, если вы хотите дом точь-в-точь, как на фотографиях проекта.

Оптимизировать дом
под ваш бюджет

без потери качества

В любой понравившийся проект можно внести изменения.

1998

team
Связаться с нами

Буквально за 5 минут разговора вы станете ближе к своему дому.

team
Я согласен на обработку персональных данных

Мы вам позвоним
в течение 10 минут в рабочее время
и душевно пообщаемся.

Ответьте для этого всего на

Всего 5 простых вопросов позволят вам узнать корректную цену на этот проект

Какой у вас участок?

Фундамент может составлять до 10% от стоимости строительства. Чтобы верно рассчитать стоимость, важно понимать какой тип фундамента подходит для вашего участка.

Ровный

С перепадами

Еще подбираю участок

Тип финансирования

Ипотека

Безнал

Наличные

Не определился

Когда вы планируете начать строительство?

Стоимость на материалы постоянно меняется. Благодаря этой информации мы можем зафиксировать за вами текущие цены или рассчитать с поправкой на изменение цен, чтобы вы могли ориентироваться на реальную стоимость.

Как можно скорее

В ближайшие 3-6 месяцев

Через пол года и более

Пока не определился

Как удобно получить итоговый файл?

Telegram
(автоматический до 15 минут)

MAX
(автоматический до 15 минут)

По телефону
(доработает сметчик, перезвоним через 2 часа)

В офисе
(личная встреча в офисе
со специалистом по стройке)

Сезонность проживания

Летнее

Круглогодичное

Регион строительства

Московская область

Ленинградская область

Вологодская область

Другой регион России

В какой комплектации хотите получить дом?

Теплый контур
(коробка под отделку)

С предчистовой отделкой (White Box)

С полной отделкой и инженеркой

Не знаю / нужна консультация

Сколько спален нужно, чтобы у каждого было личное пространство?

2 спальни
(нам и ребенку/гостям)

3 спальни
(стандарт для семьи)

4 и более
(для большой семьи)

Не знаю / нужна консультация

Удаленность участка?

Москва

до 100 км от МКАД

100+ км от МКАД

Пока нет участка

Нажимая кнопку «Подтвердить и получить», вы даете согласие на обработку ваших персональных данных в соответствии с политикой конфиденциальности

Свяжитесь с нами в мессенджере — обсудим ваш проект!

Написать в Telegram icon Написать в MAX icon